由於正好位於學區旁,房子蓋好之後,二樓出租給學生當做宿舍套房,一樓則是自住。因此,一樓與二樓的格局是截然不同的。
二十年下來,租屋率由滿檔到歸零,「由於後來學校周邊發展了新的住宅區,學生都選擇較近且較新的宿舍,這裡已經好幾年都沒有學生住了,就這樣空了好幾年。」因為家族規劃的關係,S在不久的將來,會從原本居住的一樓搬到二樓。單身、年近六十的她,希望能夠將這裡當做自己老後的家。「日後,除非真的無法自理,不然這裡的環境都這麼熟悉了,在此度過老後生活將是我的最佳選擇。」
從一樓拾級而上,二樓大門尺寸跟一般公寓門近似。走進室內,若沒有開燈還真有點幽暗。我數了數,共有6間房間、3間廁所及一間洗衣間(參考原始平面圖),真的很有大學時代的宿舍感。
![]() |
| 現況格局圖。此屋靠山壁而建,住家的前方及右側有寬敞的戶外走廊。左側則是串連整棟的室外樓梯。 |
「平常都是我一個人住,偶爾姊姊會來暫住。」她說,「如果現有隔間不要動,這樣適合我跟我姊住嗎?」
一開始,S不希望隔間打除,又希望能夠讓室內更增添採光跟通風的機會。由於建築位於山區,周遭空氣品質其實不錯,但若室內隔間這麼多,不但難以滿足對通風的需求,有時濕氣較重的季節,也會造成室內的潮溼霉味。隔間若不打除,在家具的配置上也有難度。她打算要從1樓搬15樣家具過來,從大床舖到小書架、書桌都有。
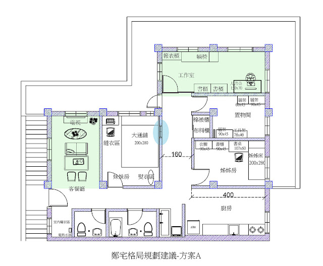
看到隔成數間的小房間,我時常會有把隔牆拆除的衝動(當然前提是不能影響到結構安全),但最重要的還是居住者的想法。於是,我提出兩個方案作為她日後整建的參考。
方案A:維持原有隔間(上圖)
依照屋主的想法,隔間盡量不變,但走道拓寬,便於日後只要安裝扶手就可以成為安全的無障礙及懷舊走道,再者,我建議S把客廳與走道之間的原有隔牆拆除,讓採光進來,不會每次一進家門就暗暗的。並依據她指出屋內風平時的流向,在主臥室的西側開道小窗(淺藍色圈圈處),使涼爽的空氣可以透過小窗進入臥室。
若在幾乎不動格局的狀況下,不論是客廳還是工作起居的空間(淺綠色區塊),因為分割的關係,在使用上都顯得狹小受限,且光是無障礙走道的改建,也佔去許多坪數。
方案B:拆除套房隔間(上圖)
如果是要長住,我還是認為現有房間數量、對只住一到兩個人的前提下太多,而且,因為柱位的影響,造成右側有兩間房間較難配置家具。如果日後預算較為充裕,我還是認為應將多餘的隔間拆除(淺綠色區塊),整合成視野遼闊的起居間。原本的柱子,成為寬敞起居室的視覺層次,更不會影響到家具配置。
如此一來,不論是姊姊偶爾來住、或是將來臨時需要看護,在視線上及動線上都較舒適安全。原有串起三間房間的走道,也因空間整合在起居空間內而消失。
為統整起居空間的一致性,將主臥室的門口改為朝向起居室。但原本的門口沒有封起,僅用強化玻璃做成上面透氣窗、下面固定窗的形式,將來若邁入照護時期,此固定窗可以再拆除改成門扇,就能方便進出衛浴。
立即加入阿羚官方Line接收最新活動與專欄文章





沒有留言:
張貼留言